ราคา 20700000.00 บาท
รายละเอียด
ขนาดห้อง 0.0 ตารางเมตร
ราคาต่อตารางเมตร บาท/ตารางเมตร
โครงการ The River | เดอะ ริเวอร์ | The River Condominium | เดอะ ริเวอร์ คอนโดมิเนียม

ประสิทธิ์ ปีเตอร์สัน เปียโน แกลเลอรี่
026612160
2012-04-04 06:00:00.0
เลขที่ประกาศ: 23705
รายละเอียดเพิ่มเติม
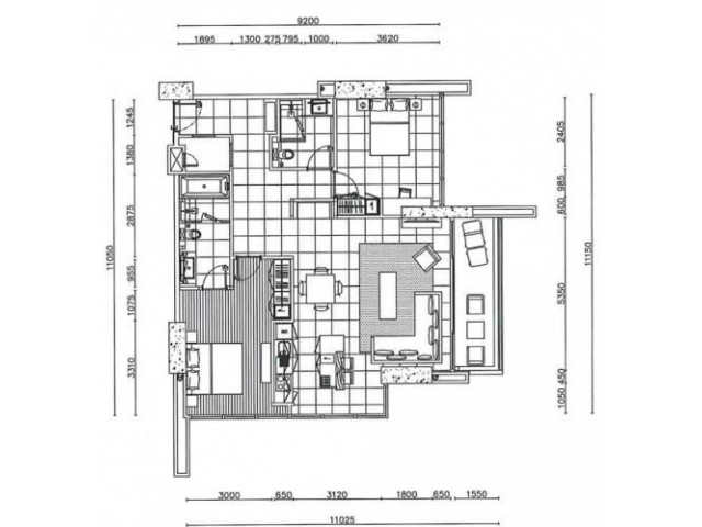
เนื้อที่ : 109 ตารางเมตร
พื้นที่ใช้สอย : 109 ตารางเมตร
จำนวนชั้น : 72
อยู่ที่ชั้น : 18

The River River Front corner unit Facing shangri la hotel and southVery good layoutSALES: 18th floor, Type 2F 2 Bedrooms, 2 Bathrooms corner unit North TowerView :Facing shangri la hotel and southUnit size: 109 sqm Price: 20,700,000 baht (190,000 baht per sqm.)BTS TaksinFully fitted kitchen, built-in closet, concealed air-conContact
คุณสมบัติ

รายละเอียดโครงการของประกาศนี้

HIGHLIGHT PROPERTY
ที่ตั้ง:
ถนนเจริญนคร ซอย13
วันที่เริ่มโครงการ:
จำนวนอาคาร:
2
พื้นที่โครงการ:
5141.0 ตร.วา
จำนวนชั้น:
7445 (อาคารที่ 1) (อาคารที่ 2) ชั้น
จำนวนห้อง:
838 (อาคารที่ 1) (อาคารที่ 2) ห้อง
ชื่อบริษัทเจ้าของโครงการ:

เบอร์โทรโครงการ:

เว็บไซต์โครงการ:

รายละเอียดเพิ่มเติม:
ขายคอนโด The River เจริญนคร 13 คอนโดหรูริมแม่น้ำเจ้าพระยา พท. 137 ตร.ม. 2+1 ห้องนอน ราคา 22,890,000 บาท - คอนโด ขาย
The River | เดอะ ริเวอร์ | The River Condominium | เดอะ ริเวอร์ คอนโดมิเนียม

รายละเอียดอาคาร 2 อาคาร

ชื่ออาคาร/ตึก: The River | เดอะ ริเวอร์

จำนวนชั้น: 7445

จำนวนห้อง: 838

รูปอาคาร

รูปแบบแปลนอาคาร
รูปที่จอดรถ

ชื่ออาคาร/ตึก:

จำนวนชั้น:

จำนวนห้อง:

รูปอาคาร

รูปแบบแปลนอาคาร
รูปที่จอดรถ

รูปแบบห้อง 5 แบบ

แบบ Studio
45.00 sqm.
แบบ 1 Bedroom
58.00 sqm.
แบบ 2 Bedrooms
76.00 sqm.
แบบ 3 Bedrooms
144.00 sqm.
แบบ 4 Bedrooms
580.00 sqm.

แบบ Studio

45.00
4860000.00

แบบ 1 Bedroom

58.00
6260000.00

แบบ 2 Bedrooms

76.00
8210000.00

แบบ 3 Bedrooms

144.00
15550000.00

แบบ 4 Bedrooms

580.00
62640000.00

รายชื่อประกาศขายหรือเช่าทั้งหมดของโครงการนี้ 80 ประกาศ

JCS519 ขาย คอนโด 2นอน26ล เดอะ ริเวอร์ 131 ตรม.

เลขที่: 443902
2023-05-29 23:51:38.0
Add to wishlist

The River | เดอะ ริเวอร์ | The River Condominium | เดอะ ริเวอร์ คอนโดมิเนียม

ขนาดพื้นที่ 131.0 ตารางเมตร

JCOT Property

0630964452

ขาย 26000000.00 บาท

ขาย คอนโด เดอะ ริเวอร 65 ตรม.

เลขที่: 388905
2022-02-26 13:21:18.0
Add to wishlist

The River | เดอะ ริเวอร์ | The River Condominium | เดอะ ริเวอร์ คอนโดมิเนียม

ขนาดพื้นที่ 65.0 ตารางเมตร

Billionbproperty

0821877537

ขาย 9500000.00 บาท

P56CA2106105 The River Condominium 2 Bed 2 Bath 110 Sqm

เลขที่: 354548
2021-06-29 10:39:10.0
Add to wishlist

The River | เดอะ ริเวอร์ | The River Condominium | เดอะ ริเวอร์ คอนโดมิเนียม

ขนาดพื้นที่ 110.0 ตารางเมตร

Incube Realty

0983392461

ขาย 26000000.00 บาท

P17CR1911006 The River Condominium 3 Bed 3 Bath 231 Sqm

เลขที่: 337109
2021-03-10 16:18:28.0
Add to wishlist

The River | เดอะ ริเวอร์ | The River Condominium | เดอะ ริเวอร์ คอนโดมิเนียม

ขนาดพื้นที่ 231.0 ตารางเมตร

Incube Realty

0983392461

ขาย 55000000.00 บาท

P33CR1910016 The River 3 Bed 3 Bath 188 Sqm

เลขที่: 337088
2021-03-10 15:39:31.0
Add to wishlist

The River | เดอะ ริเวอร์ | The River Condominium | เดอะ ริเวอร์ คอนโดมิเนียม

ขนาดพื้นที่ 188.0 ตารางเมตร

Incube Realty

0983392461

ขาย 43000000.00 บาท

P17CR1909062 The River 3 Bed 3 Bath 207 Sqm

เลขที่: 337082
2021-03-10 15:28:58.0
Add to wishlist

The River | เดอะ ริเวอร์ | The River Condominium | เดอะ ริเวอร์ คอนโดมิเนียม

ขนาดพื้นที่ 207.0 ตารางเมตร

Incube Realty

0983392461

ขาย 42000000.00 บาท

P17CR2001015 The River Condominium 3 Bed 3 Bath 132 Sqm

เลขที่: 337007
2021-03-10 12:42:23.0
Add to wishlist

The River | เดอะ ริเวอร์ | The River Condominium | เดอะ ริเวอร์ คอนโดมิเนียม

ขนาดพื้นที่ 132.0 ตารางเมตร

Incube Realty

0983392461

ขาย 32900000.00 บาท

P33CR1903357 The River 2 Bed 2 Bath 78 Sqm

เลขที่: 332130
2021-02-16 19:39:24.0
Add to wishlist

The River | เดอะ ริเวอร์ | The River Condominium | เดอะ ริเวอร์ คอนโดมิเนียม

ขนาดพื้นที่ 78.0 ตารางเมตร

Incube Realty

0983392461

ขาย 13500000.00 บาท

ให้เช่าคอนโด Voque Sukhumvit 16 ใกล้ MRT ศูนย์วัฒนธรรม

เลขที่: 285879
2019-09-16 18:41:39.0
Add to wishlist

The River | เดอะ ริเวอร์ | The River Condominium | เดอะ ริเวอร์ คอนโดมิเนียม

ขนาดพื้นที่ 51.0 ตารางเมตร

Live quality estate Live quality estate

0874873456

เช่า 28000.00 บาท

P17CR1810019 The River 2 Bed 2 Bath 101 Sqm

เลขที่: 282786
2019-05-10 16:36:02.0
Add to wishlist

The River | เดอะ ริเวอร์ | The River Condominium | เดอะ ริเวอร์ คอนโดมิเนียม

ขนาดพื้นที่ 101.0 ตารางเมตร

Incube Realty

0983392461

ขาย 21900000.00 บาท

ขายเช่า Quad silom ใกล้ BTS ช่องนนทรี 100 m ห้องสวยน่าอยู่

เลขที่: 281978
2019-04-08 19:13:20.0
Add to wishlist

The River | เดอะ ริเวอร์ | The River Condominium | เดอะ ริเวอร์ คอนโดมิเนียม

ขนาดพื้นที่ 54.0 ตารางเมตร

Live quality estate Live quality estate

0874873456

เช่า 35000.00 บาท

For Sale The River (CORNER TYPE HIGH FLOORS NEAR BY BTS AND ICON SIAM )

เลขที่: 281477
2019-03-23 18:06:14.0
Add to wishlist

The River | เดอะ ริเวอร์ | The River Condominium | เดอะ ริเวอร์ คอนโดมิเนียม

ขนาดพื้นที่ 109.0 ตารางเมตร

intervest89 agent

0627824672

ขาย 23800000.00 บาท

(เช่า) FOR RENT VOQUE SUKHUMVIT 16 / 1 bedroom / 58 Sqm.**30,000** CLOSE BTS ASOKE

เลขที่: 280783
2019-03-10 15:31:26.0
Add to wishlist

The River | เดอะ ริเวอร์ | The River Condominium | เดอะ ริเวอร์ คอนโดมิเนียม

ขนาดพื้นที่ 58.0 ตารางเมตร

Nuttapong Maneeakharanate

0933244757

เช่า 30000.00 บาท

RC3887.PM RENT Voque Sukhumvit 16 57sqm 1bed 7F 30000 Baht per month

เลขที่: 280568
2019-03-08 22:25:08.0
Add to wishlist

The River | เดอะ ริเวอร์ | The River Condominium | เดอะ ริเวอร์ คอนโดมิเนียม

ขนาดพื้นที่ 57.0 ตารางเมตร

piepie post

0641717170

เช่า 30000.00 บาท

Condo for Rental Quad Silom 60 sqm only 1 min walks from BTS Chongnonsi

เลขที่: 277164
2019-02-18 06:56:04.0
Add to wishlist

The River | เดอะ ริเวอร์ | The River Condominium | เดอะ ริเวอร์ คอนโดมิเนียม

ขนาดพื้นที่ 60.0 ตารางเมตร

บุญชู อัศวฤทธิพรหม์

0891756462

เช่า 35000.00 บาท

The River 2 bedrooms and 1 office room for rent at The River Charoenakorn 13 Tower B

เลขที่: 276854
2019-02-16 04:11:57.0
Add to wishlist

The River | เดอะ ริเวอร์ | The River Condominium | เดอะ ริเวอร์ คอนโดมิเนียม

ขนาดพื้นที่ 140.0 ตารางเมตร

Firstpeony Kanyanatt

0985641955

เช่า 110000.00 บาท

2 bedrooms and 1 bedroom for rent at the River Charoenakorn Soi 13 Tower A with River View

เลขที่: 276852
2019-02-16 04:05:44.0
Add to wishlist

The River | เดอะ ริเวอร์ | The River Condominium | เดอะ ริเวอร์ คอนโดมิเนียม

ขนาดพื้นที่ 140.0 ตารางเมตร

Firstpeony Kanyanatt

0985641955

เช่า 120000.00 บาท

Condo for Rent at Baan Pipat (Silom soi 3) 120 sqm 2 bed 2 bath

เลขที่: 276390
2019-02-14 14:20:41.0
Add to wishlist

The River | เดอะ ริเวอร์ | The River Condominium | เดอะ ริเวอร์ คอนโดมิเนียม

ขนาดพื้นที่ 120.0 ตารางเมตร

Century21 Century21

0941917995

เช่า 55000.00 บาท

ให้เช่า คอนโด ควอดสีลม (Quad silom) 42 ตรม. ติด BTS ช่องนนทรี เพียง 25 เมตร

เลขที่: 276041
2019-02-13 12:31:12.0
Add to wishlist

The River | เดอะ ริเวอร์ | The River Condominium | เดอะ ริเวอร์ คอนโดมิเนียม

ขนาดพื้นที่ 42.0 ตารางเมตร

บุญชู อัศวฤทธิพรหม์

0891756462

เช่า 29000.00 บาท

The River Condo 1 bedroom for rent with River View South Tower

เลขที่: 272755
2019-01-27 08:00:23.0
Add to wishlist

The River | เดอะ ริเวอร์ | The River Condominium | เดอะ ริเวอร์ คอนโดมิเนียม

ขนาดพื้นที่ 75.0 ตารางเมตร

Firstpeony Kanyanatt

0985641955

เช่า 37000.00 บาท

(เช่า) FOR RENT THE VERTICAL AREE / 1 bed / 40 Sqm.**28,000** CLOSE BTS AREE

เลขที่: 272419
2019-01-24 17:53:26.0
Add to wishlist

The River | เดอะ ริเวอร์ | The River Condominium | เดอะ ริเวอร์ คอนโดมิเนียม

ขนาดพื้นที่ 40.0 ตารางเมตร

Nuttapong Maneeakharanate

0933244757

เช่า 28000.00 บาท

For Sale The River 112 Sq.m. 2 bedroom(s) 2 bathroom(s)

เลขที่: 271540
2019-01-19 09:33:31.0
Add to wishlist

The River | เดอะ ริเวอร์ | The River Condominium | เดอะ ริเวอร์ คอนโดมิเนียม

ขนาดพื้นที่ 112.0 ตารางเมตร

intervest89 agent

0627824672

ขาย 20085000.00 บาท

Condominuim For Rent Voque Sukhumvit 16 (โว๊ค สุขุมวิท 16)

เลขที่: 269614
2019-01-08 20:22:04.0
Add to wishlist

The River | เดอะ ริเวอร์ | The River Condominium | เดอะ ริเวอร์ คอนโดมิเนียม

ขนาดพื้นที่ 40.0 ตารางเมตร

Phoomet agentcy

0941358956

เช่า 22000.00 บาท

ให้เช่า ควอด สีลม 60ตรม. BTS ช่่องนนทรี ห้องใหม่สวย เฟอร์ครบ

เลขที่: 268819
2019-01-03 19:03:33.0
Add to wishlist

The River | เดอะ ริเวอร์ | The River Condominium | เดอะ ริเวอร์ คอนโดมิเนียม

ขนาดพื้นที่ 60.0 ตารางเมตร

วรรินธรWORARINTHORN ลาดแดงLADDAENG

0925956395

เช่า 35000.00 บาท
HIGHLIGHT PROPERTY
รายการประกาศที่ดูล่าสุด (Recent Advertise List)
River Front unit Shangri la view and south SALES 2BR corner unit
ขาย 20700000.00 บาท
I-House Condo
ขาย 2700000.00 บาท
ขาย i house condo rca
ขาย 2200000.00 บาท
คอนโด
ขาย 230000.00 บาท
I-House Condo Rama 9
ขาย 1390000.00 บาท
ขาย i house condo
ขาย 2400000.00 บาท
@ city Condominium - คอนโด ขาย
ขาย 1650000.00 บาท
Amanta Ratchada 5 For Rent 2 Bed 45000 Baht
ขาย 45000.00 บาท
condo for rent condolate ratchada soi36
เช่า 8000.00 บาท
คอนโดสวยพร้อมอยู่ ดิไอริส ศรีนครินทร์ 45.54 ตร.ม.
ขาย 2200000.00 บาท
clear